
PROJEKTBESCHREIBUNG
Mit Beginn des Uranerzbergbaus der SAG Wismut im Erzgebirge ab 1946 erlangte die Strecke 6626 Johanngeorgenstadt –Schwarzenberg innerhalb kurzer Zeit eine herausragende Bedeutung.
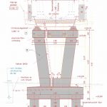
Sie wurde sowohl für die Abfuhr der geförderten Uranerze als auch für den Berufsverkehr zu den neu eingerichteten Bergwerkschächten in Johanngeorgenstadt benötigt. 1948 wurde die Strecke für einen zweigleisigen Betrieb ausgebaut. Die im Bestand vorhandenen stählernen Brücken überführen die eingleisige Strecke über den Kreisverkehr Knoten B101/ S272 in Schwarzenberg mit Stützweiten von 16,40 m bzw. 21,80 m mit einem massiven Mittelpfeiler von ca. 20 m und werden durch eine 3-feldrige stählerne Trogbrücke auf massiven Widerlagern und schlanken Pfeilern ersetzt.
Die beengten Verhältnisse bedingen einen Neubau unter teilweiser Vollsperrung des Bahnbetriebes. Die Umsetzung der Maßnahme ist für das Jahr 20192020 vorgesehen.
BAUHERR
RegioNetz Erzgebirgsbahn Chemnitz, Herr Schmidt, +49 0371-4931010
PROJEKTDATEN
- Stützweite Überbau 63,00 m
- Breite zw. den Geländern 8,18 m
- Kreuzungswinkel 100 gon
- Brückenfläche 528 m²
TERMINE
10//2017 – 04/2018 (LP 3) 06/1017 (LP 4) 06/2019 (LP6)
LEISTUNGEN
- Vorplanung
- Entwurfsplanung
- Genehmigungsplanung
- Ausschreibungsplanung in der Objekt- und Tragwerksplanung

